Monument

Biserica ortodoxă din Bedeciu

Beneficiar

Parohia Ortodoxă Română Bedeciu

Obiectiv

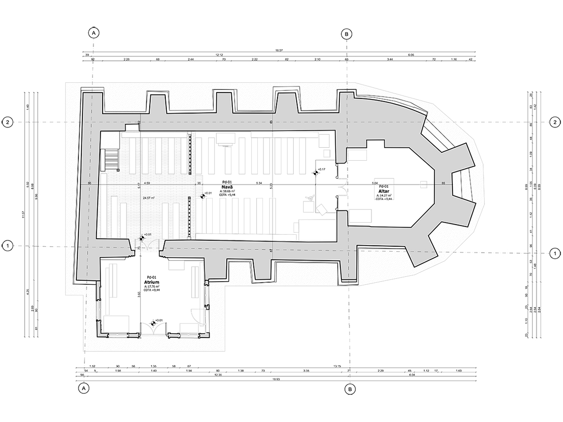
  • Relevarea integrală a ansamblului
  • Identificarea zonelor de degradări
  • Realizarea desenelor tehnice 2D

Releveu executat în 2025 august

Categorie

Monument

Despre proiect

Biserica medievală „Înălțarea Domnului”, reprezintă un reper arhitectural pentru localitate, fiind amplasată în zona nord-vestică a satului, pe versantul unui deal, dominând silueta așezării. Edificiul este datat din perioada goticului târziu, în secolul al XV-lea. Clădirea monument prezintă caracteristicile stilului gotic, păstrând bolta originală ogivală deasupra altarului, ancadramentele de piatră cu arc frânt la uși și ferestre. Din pozele de arhivă, biserica a prezentat un acces acoperit cu structură ușoară de lemn. Interiorul a fost văruit alb, cu excepția tribunei din lemn pictat pe intrados cu stele. În ce privește pridvorul, nu s-au găsit date cu privire la data construcției. În prezent el este închis cu gips-carton și tratat în maniera fațadelor edificiului. Între anii 1988-1989 se realizează pictura interioară în tehnică de frescă.

Acest proiect “Restaurarea bisericii medievale „Înălțarea Domnului” Bedeciu – cod LMI CJ-II-m-B-07528”, finanțat în cadrul subprogramului „Edificii de cult” / „Elaborare a documentaţiilor tehnico-economice pentru intervenţii asupra monumentelor istorice” – faza DALI, DTAC, PT+DE este organizat de către INP (Institutul Național al Patrimoniului).

Desene tehnice proiect

Explorează turul virtual

Explorează norul de puncte